+352 691 684 860
susana.dias@hotmail.fr

41 Rue D'Ettelbruck

L-7462 Moesdorf (Mersch)

+352 691 684 860

0

0

0

0 m²

0 ar

Ettelbrück

Terrain à bâtir à vendre

600 000 €

description du bien
!!! ATTENTION INVESTISSEURS !!!

IMMODS5 vous propose en vente une opportunité rare d’investissement immobilier au cœur de la Ville d’Ettelbruck.

Un terrain constructible avec projet approuvé (construction d’une nouvelle résidence en futur état d’achèvement V.E.F.A) et compris toutes autorisations nécessaires et cadastre verticale validé.

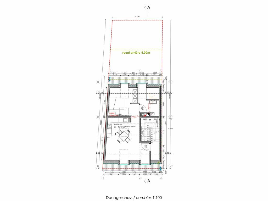
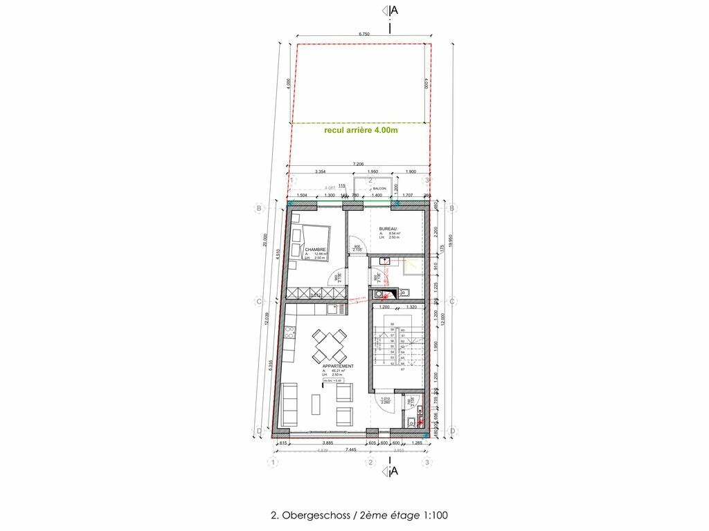
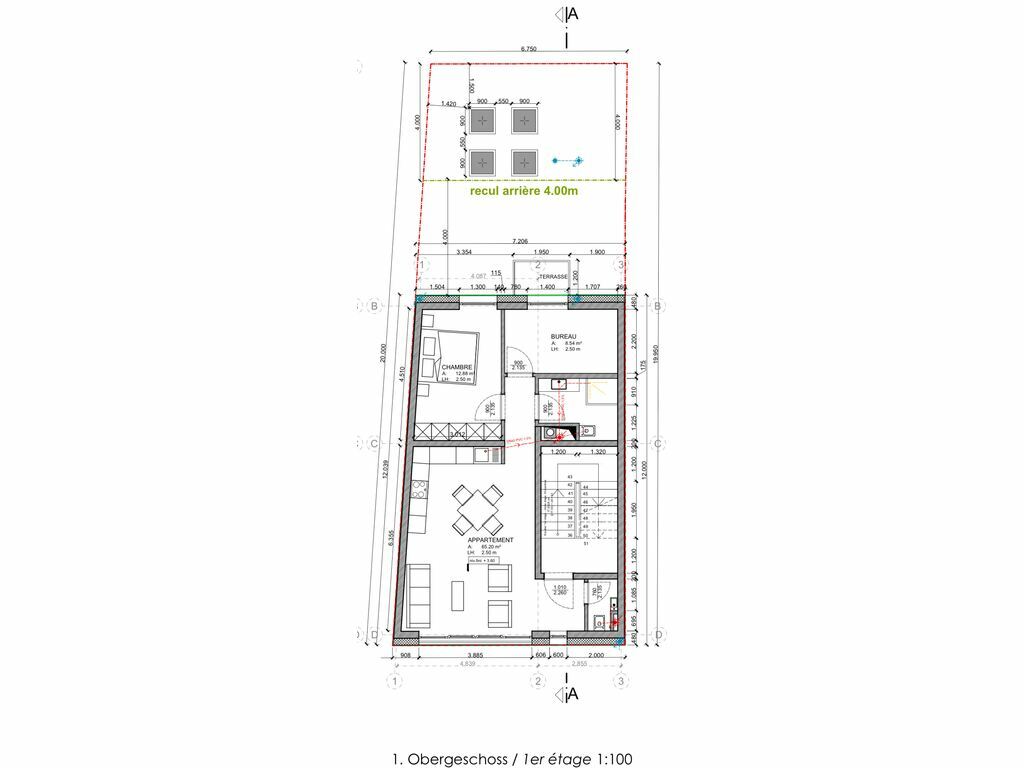
Le projet comprend :
. 3 Appartements repartis sur trois étages, (1er/2ème/3ème).
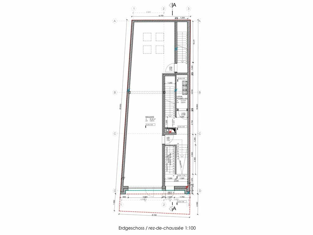
. Au rez-de-chaussée:
1 Entrée résidence,
1 Local commercial,
1 Local poubelles.
. Au sous-sol:
3 Caves privées,
1 Local stockage pour le commerce,
1 Buanderie commune,
1 Local thecnique,
1 Local nettoyage commun.

Excellente localisation, près de toutes les commodités d’un centre ville.

Pour toutes informations complémentaires, veuillez contacter Mme: Dias Susana au numéro: 691684860 ou par mail: contact@immods5.lu
détail de la vente

Honoraires à la charge

N.C

Montant honoraires

N.C

Charges mensuelles

N.C

TVA appliquée

N.C

Montant Commission

N.C

Frais de notaire

N.C

pass énergétique
Classe énergétique
N.C
Isolation thermique
N.C
caractéristiques
localisation

proximité autoroutes

carte
annonces similaires

Ettelbrück (lu)

Terrain à bâtir à vendre

600 000 €